Denmar d.o.o
Toggle Menu
Početna
Usluge
Projekti
Odrađeni Projekti
Stručni Nadzori
Izvedbeni Nacrti
Reference
Kontakt
Surađujmo
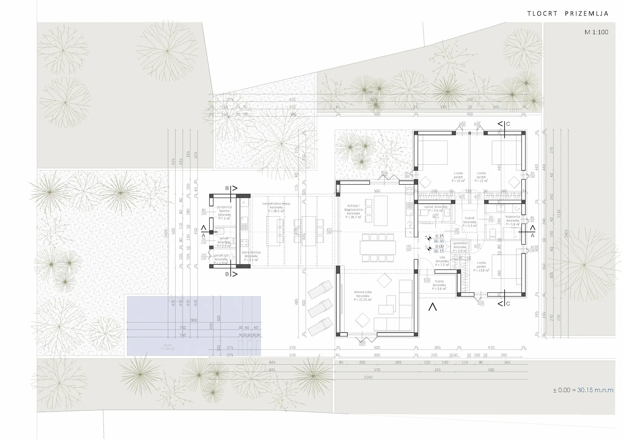
Izgradnja kuće za odmor Nin
Lokacija
Nin
Kategorija
Kuće Za Odmor
Pojedinosti projekta
Naziv:
Tlocrt prizemlja
Slični projekti
Pogledajte sve projekte »
Kuće Za Odmor
Izgradnja kuće za odmor Dubrovnik
Kuće Za Odmor
Rekonstrukcija Turanj
Kuće Za Odmor
Rekonstrukcija kuće za odmor