Denmar d.o.o
Toggle Menu
Početna
Usluge
Projekti
Odrađeni Projekti
Stručni Nadzori
Izvedbeni Nacrti
Reference
Kontakt
Surađujmo
Rekonstrukcija stambene zgrade s 9 stanova
Lokacija
Turanj
Kategorija
Stambene Zgrade
Pojedinosti projekta
Naziv:
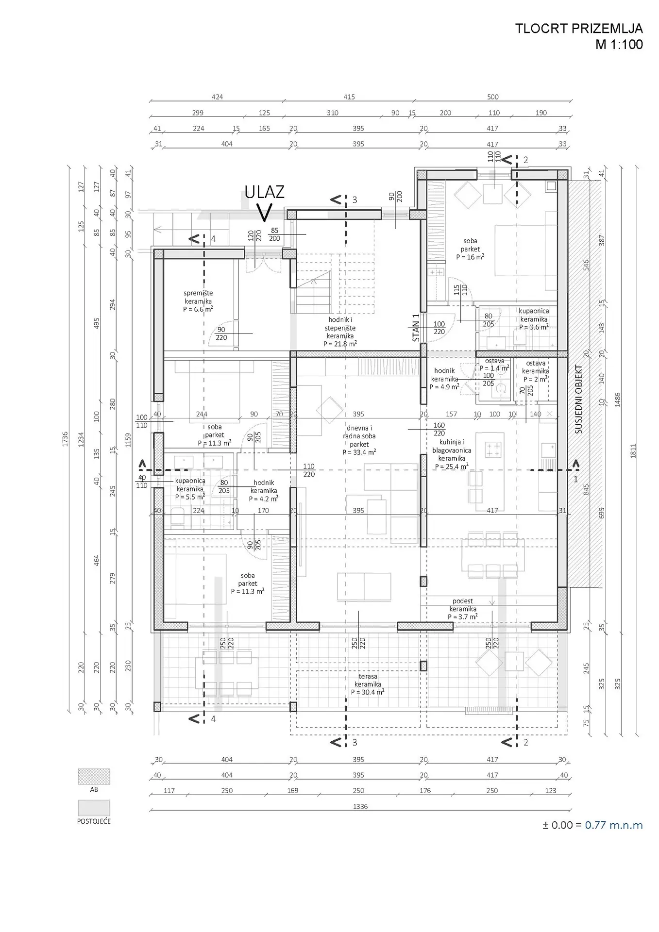
Tlocrt prizemlja
Naziv:
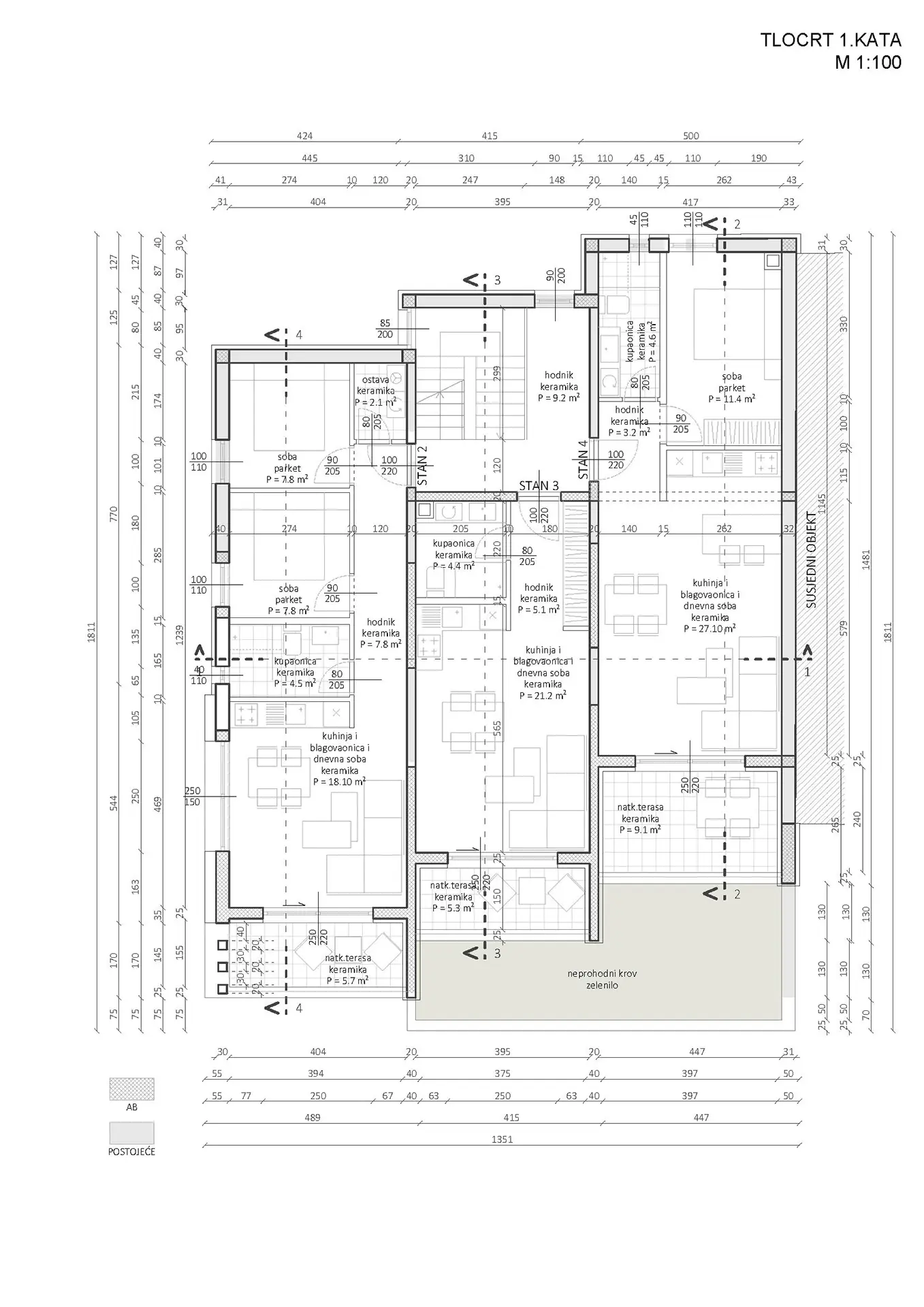
Tlocrt 1. kata
Naziv:
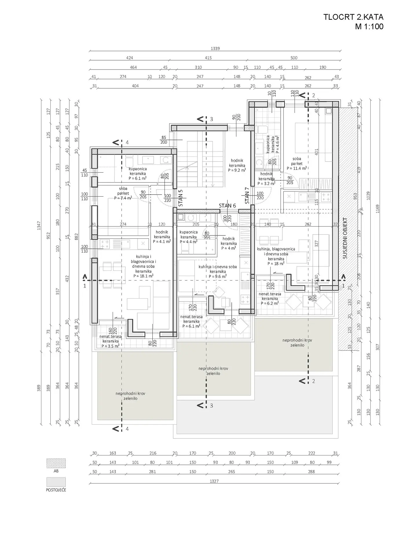
Tlocrt 2. kata
Naziv:
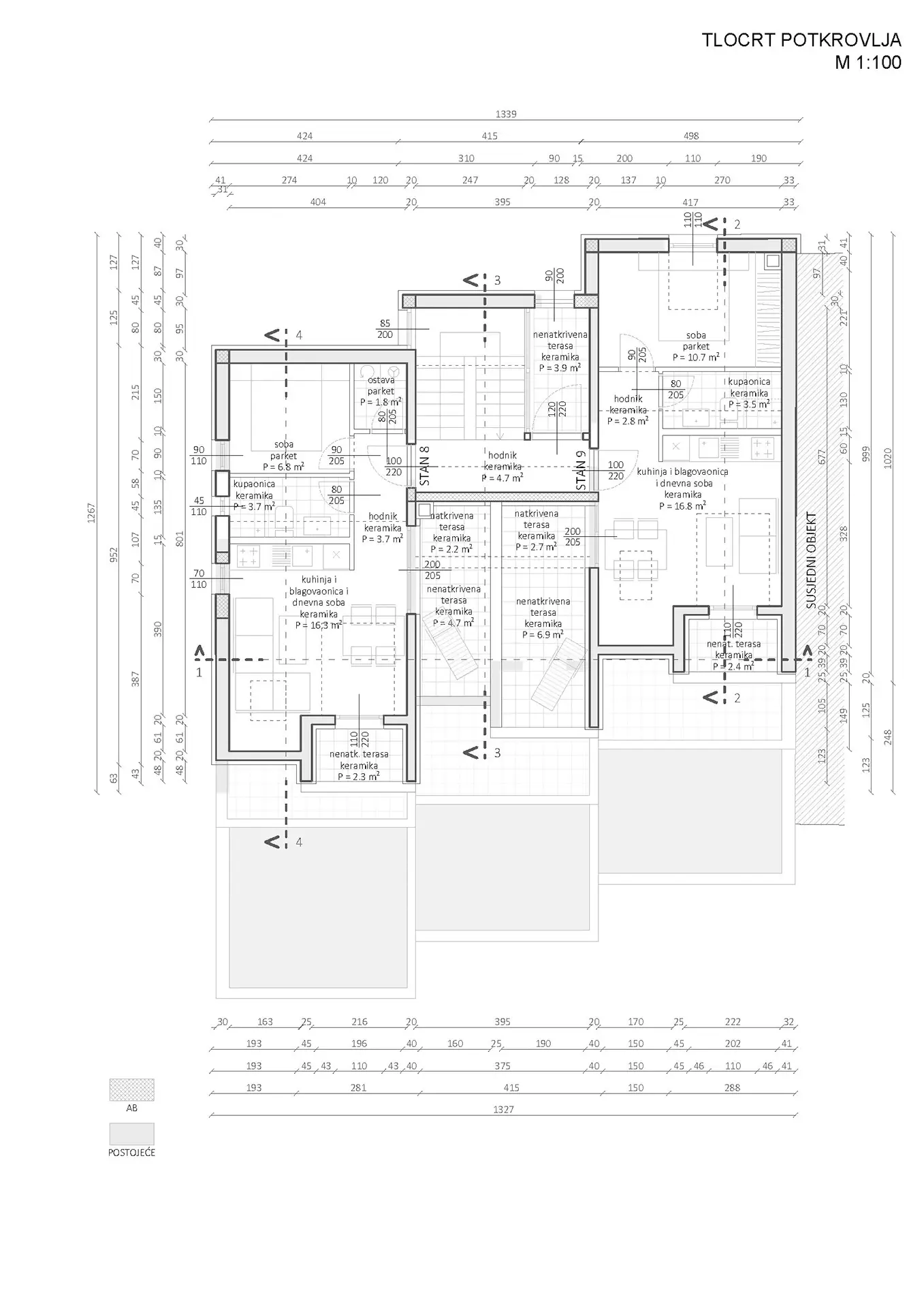
Tlocrt potkrovlja
Slični projekti
Pogledajte sve projekte »
Stambene Zgrade
Rekonstrukcija stambene građevine s 5 stanova
Stambene Zgrade
Rekonstrukcija zgrade s 3 stana
Stambene Zgrade
Projekt okoliša